Котел на опилках 900 кВт в Курчатове

На опилках котел 900 кВт
Котел на опилках 900 кВт
Котел на опилках 900 кВт чертеж
Чертеж котла на опилках 900 кВт
Котел 900 кВт на опилках автоматический
Автоматический котел на опилках 900 кВт
Котел на опилках 900 кВт твердотопливный
Твердотопливный котел на опилках 900 кВт
Котел на опилках отопительный 900 кВт
Отопительный котел на опилках 900 кВт
Котел 900 кВт на опилках с автоматической подачей
Котел на опилках 900 кВт с автоматической подачей
Питатель плунжерный котла 900 кВт на опилках
Плунжерный питатель котла 900 кВт на опилках
Подача плунжерная
Плунжерная подача
Живое дно бункер
Бункер Живое дно
Склад механизированный Живое дно
Механизированный склад Живое дно
На опилках котел 900 кВт
Котел на опилках 900 кВт чертеж
Котел 900 кВт на опилках автоматический
Котел на опилках 900 кВт твердотопливный
Котел на опилках отопительный 900 кВт
Котел 900 кВт на опилках с автоматической подачей
Питатель плунжерный котла 900 кВт на опилках
Подача плунжерная
Живое дно бункер
Склад механизированный Живое дно
Цена
14 181 680 ₸
От 14 181 680 ₸ с доставкой до г.
Логотип WhatsApp Связаться
по WhatsApp
  • Автоматический и ручной режим работы
  • Эффективная работа на сырых и прессованных опилках, стружке, коре влажностью до 60%, с возможностью сжигания дров в ручном режиме
  • Вихревой режим работы с полным догоранием топлива
  • Автоматизированная регулировка подачи топлива и требуемых параметров теплоносителя
  • Система безопасности от воспламенения топлива

Технические характеристики

МаркаКотел КВм ДО 900 кВт
ВидВодогрейный
Тип отопительного котлаТвердотопливный
БрендHEATEXPERT
ТипКотел КВм ДО
Вид топкиВихревая, Автоматическая
Максимальная тепловая мощность0.9 МВт
Максимальная тепловая мощность900 кВт
Максимальная тепловая мощность0.8 Гкал
Диапазон регулирования мощности50-100 %
ТопливоТвердое, Опилки
Низшая теплота сгорания проектного топлива2440 кКал/кг
Влажность топлива50 %
КПД котла на ОПИЛКАХ, не менее80 %
Расход ОПИЛОК среднечасовой за отопительный сезон127 кг/ч
Расход ОПИЛОК при максимальной нагрузке котла222 кг/ч
Расход условного топлива155 кг/ч
Минимальная температура воды на входе в котел55 °С
Максимальная температура воды на выходе из котла115 °С
Давление воды, не более0.3-0.6 (3-6) МПа (кгс/см²)
Номинальный расход теплоносителя35 м³/ч
Расход теплоносителя через котел min-max28-42 м³/ч
Гидравлическое сопротивление при номинальном расходене более 0.07 (0.7) МПа (кгс/см²)
Аэродинамическое сопротивление80 (8) Па (мм. вод. ст.)
Разряжение в топочной камере20-40 (2-4) Па (мм. вод. ст.)
Объем уходящих газов4810 м³/ч
Температура уходящих газов220 °С
ТягаУравновешенная
Водяной объем котла900 л
Объем топочной камеры4.57 м³
Размер топочной камеры, длина*ширина*высота1705х1300х2060 мм
Присоединительные размеры по водяному тракту100 Ду
Присоединительные размеры газохода уходящих газов, ширина*высота / сечение600х300 / 0.18 мм/м²
Габаритные размеры блока, длина*ширина*высота3090х1770х2250 мм
Габаритные размеры установки, длина*ширина*высота3355х3010х2250
Масса3000 кг
Конструкция котлаВодотрубная
Количество контуровОдноконтурный
РазмещениеНапольный
Тип камеры сгоранияОткрытый
УправлениеЭлектронное
Принцип работы твердотопливного котлаКлассический
ЭнергонезависимыйНет
Тип питанияТрехфазное
Встроенный циркуляционный насосНет
Встроенный расширительный бакНет
ЭнергоэффективностьВысокая
Отапливаемая площадьот 7700 до 11000 м²
Отапливаемый объемот 22900 до 32900 м³
Габаритные размеры котла, длина*ширина*высота мм
Размеры корпуса котла, длина*ширина*высота мм

Котел на опилках 900 кВт с автоматической подачей в Курчатове

Промышленный твердотопливный котел на опилках 900 кВт с автоматической подачей наиболее востребован на предприятиях деревообработки для сушки древесины, лесопилках, пилорамах, лесхозах, мебельных и погонажных производствах для технологических нужд, а также для отопления и горячего водоснабжения. Отопление опилками, остающимися после изготовления ваших изделий, принесет значительную экономию при теплоснабжении ваших предприятий. Автономная работа котла 900 кВт на опилке не требует больших усилий со стороны кочегара, все процессы настраиваются и поддерживаются при помощи автоматики.

Теплогенератор работает на сырых и прессованных опилках, щепе, стружке, в ручном режиме возможна загрузка дров, поленьев, крупнокусковых отходов. Агрегат нагревает воду до 95 – 115 градусов с давлением теплоносителя 0,3 – 0,6 МПа.

Твердотопливный котел 900 кВт на опилках устройство

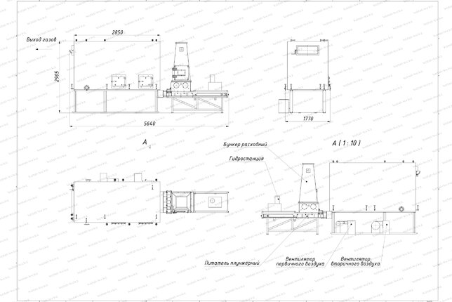
Отопительный котел 900 кВт на опиле - водотрубный, гладкотрубный, газоплотный, напольный изготавливается в горизонтальном расположении со шнековой подачей, вихревой топкой и бункером.

Агрегаты работают в автоматическом режиме. Автоматика осуществляет запуск, остановку, регулировку давления и температуры теплоносителя, подачу необходимого количества воздуха, пожаротушение в случае воспламенения топлива в топливопроводе. Для необходимости сжигания крупногаборитных отходов автоматика переключается в ручной режим работы.

Водогрейный котел 900 кВт со шнековой подачей древесных отходов состоит из котельного блока с конвективными пакетами, вихревой топки, шнекового питателя, бункера.

Шнековый питатель с бункером крепиться к котельному блоку. В зависимости от расположения котлоагрегата в котельной, крепление шнека с бункером может быть справа, либо слева. Чтобы исключить зависание топлива, бункер оснащен ворошителем.

Подача топлива в топку производится шнековым питателем. Подача топлива регулируется скоростью вращения шнека. Автоматический котел 900 кВт для отопления производит предварительную подсушку сырых опилок. Это помогает избежать температурных колебаний в работе котла на протяжении отопительного сезона. При заклинивании шнека автоматически включается реверсивное движение. Охлаждение выходного узла препятствует воспламенению топлива.

Пожаробезопасность обеспечивается клапанами системы пожаротушения, прибороми контроля давления в системе пожаротушения и температуры топливопровода.

Вихревая топка

Производственный шнековый котел 900 кВт подходит для сжигания сырых опилок с влажностью до 60 %. Высокая температура в топке способствует сушке топлива, быстрому загоранию и устойчивому горению.

Вихревой метод горения способствует полному выгоранию топлива мелких и крупных фракций. При попадании в воздушный поток мелкие частицы направляются в центр топки и сгорают во взвешенном состоянии. Крупные фракции постепенно скатываются к центру и более легкие, подсушенные выбрасываются в центр топки. Таким образом, в вихревой топке происходит полное сжигание топлива.

Часть топочной камеры занимает водоохлаждаемая решетка. Дрова – объемное топливо, требующее для лучшего горения достаточное количество кислорода. Поэтому закладку дров лучше делать на водоохлаждаемую решетку. Отверстия, расположенные на решетке полностью обеспечивают кислородом топливный слой.

Комплект поставки

Цена на напольные котлы 900 кВт на опилках включает базовую комплектацию. В состав базовой комплектации входит: вентилятор поддува, бункер с шнеком, затворы, предохранительные клапаны, вентили, манометры, термометры, трехходовые краны.

Дополнительная комплектация

  • автоматика – обеспечивает управление и безопасность котла;
  • циркуляционный насос - обеспечивает циркуляцию воды в котлоагрегате;
  • подпиточный насос – позволяет пополнять объем теплоносителя в контуре;
  • дымосос – создает разряжение в котле и исключает попадание дыма в помещение;
  • золоуловитель – применяется для улавливания золы из дымовых газов.

Купить котел 900 кВт на опилках

Для того, что бы купить котел 900 кВт на опилке в Курчатове вы можете сделать заявку по телефону +7-7172-69-59-73, либо оформить заявку онлайн. Менеджеры дадут консультацию по подбору вспомогательного оборудования для выбранных вами моделей и рассчитают стоимость доставки. Транспортирование котлоагрегата и вспомогательного оборудования до объекта осуществляется автомобильным транспортом.

Комплект поставки

Вентилятор
ВР280-26 №2,5 с дв. 1,5 кВт/3000
1 штука
Вентилятор
ВР280-26 №2,5 с дв. 3,0 кВт/3000
1 штука
Нет фото
Шнековый питатель
1 штука
Бункер под древесное топливо
Бункер древесного топлива
1 штука
Затвор Ду 100
Затвор Ду 100
2 штуки
Клапан предохранительный Ду 50
Клапан Ду 50
1 штука
Клапан обратный
Клапан обратный
1 штука
Манометр МП 160
Манометр МП 160
2 штуки
Кран трехходовой ДУ 15
Кран Ду 15
2 штуки
Термометр ТТЖО
Термометр ТТЖО
2 штуки
Оправа термометра ОПТ
Оправа ОПТ
2 штуки
Вентиль Ду 15
Вентиль Ду 15
5 штук
Вентиль Ду 20
Вентиль Ду 20
8 штук

Дополнительно потребуется

Насос К консольный
К 80-65-160
Цена 497 545 тг.
Насос К консольный
К 50-32-125
Цена 313 025 тг.
Насос TD
Насос TD40-36G2 (5.5 кВт)
Цена 1 447 164 тг.
Насос TD
Насос TD80-29G2 (7.5 кВт)
Цена 1 530 198 тг.
Насос CHL
Насос CHL4-40 (0.75 кВт)
Цена 378 925 тг.
Дымосос ДН 6.3
Цена 642 525 тг.
Золоуловитель ЗУ 0.8
Цена 336 090 тг.
Дымосос ДН 8
Цена 1 413 555 тг.

Похожая продукция

900 кВт котел на дровах
Цена 4 105 570 тг.
Котел 900 кВт дрова уголь
Цена 3 835 380 тг.
Твердотопливный котел 900 кВт
Цена 3 716 760 тг.
На опилках котел 800 кВт
Цена 13 990 570 тг.
На опилках котел 1000 кВт
Цена 14 333 250 тг.

Сертификаты товара

Сертификат на водогрейные котлы на твердом и жидком топливе
Сертификат на водогрейные котлы на твердом топливе

Собственное производство

Котельный завод производит
  • Паровые котлы от 300 кг до 2.5 тонны пара в час
  • Промышленные водогрейные котлы от 150 КВт до 4 МВт на всех видах топлива
  • Механические топки ТШПМ, шурующая планка и ТЛПХ, ленточное полотно прямого хода
  • Циклоны для очистки воздуха и дымовых газов для производств и промышленных отраслей
  • Транспортеры и системы топливоподачи и шлакоудаления
Подробнее о производстве
Собственное производство
Смотреть видео
с производства