Котел КВм 0.6 с ТШПМ в Курчатове

Котел КВм 0.6 МВт с ТШПМ
Котел КВм 0.6 МВт с ТШПМ
Котел КВм 0.6 с ТШПМ чертеж
Чертеж котла КВм 0.6 с ТШПМ
Механический котел КВм 0.6 МВт
Механический котел КВм 0.6 МВт
Котел КВм 0.6 МВт с ТШПМ-1.45
Котел КВм 0.6 МВт с ТШПМ-1.45
Изготовление промышленного котла КВм 0.6 МВт
Изготовление промышленного котла КВм 0.6 МВт
Изготовление водогрейного котла КВм 0.6 МВт
Изготовление водогрейного котла КВм 0.6 МВт
Изготовление котла КВм 0.6 МВт
Изготовление котла КВм 0.6 МВт
Производство котлов КВм 0.6 МВт
Производство котлов КВм 0.6 МВт
Котел КВм 0.6 МВт с ТШПМ
Котел КВм 0.6 с ТШПМ чертеж
Механический котел КВм 0.6 МВт
Котел КВм 0.6 МВт с ТШПМ-1.45
Изготовление промышленного котла КВм 0.6 МВт
Изготовление водогрейного котла КВм 0.6 МВт
Изготовление котла КВм 0.6 МВт
Производство котлов КВм 0.6 МВт
Цена
по запросу
От 0 ₸ с доставкой до г.
  • Модель с механической топкой с шурующей планкой ТШПМ
  • Работа на каменном и буром угле повышенной влажности
  • Полностью автоматизированная работа – подача и равномерное распределение топлива, механическое золоудаление, контроль температуры и давления, контроль перегрузки планки
  • Надежная работа котла обеспечивается изготовлением трубной системы из трубы сталь 10, 20 повышенной прочности
  • Удобные люки для очистки поверхностей нагрева

Технические характеристики котла КВм 0.6 с ТШПМ

МаркаКотел КВм 0.6 с ТШПМ
ВидВодогрейный
Тип отопительного котлаТвердотопливный
БрендHEATEXPERT
ТипКотел КВм
Вид топкиМеханическая, ТШПМ
Марка топкиТШПМ-0.8
Максимальная тепловая мощность0.6 МВт
Максимальная тепловая мощность600 кВт
Максимальная тепловая мощность0.52 Гкал
Диапазон регулирования мощности50-100 %
ТопливоТвердое, Уголь
Низшая теплота сгорания проектного топлива5230 кКал/кг
КПД котла на УГЛЕ, не менее80 %
Расход УГЛЯ среднечасовой за отопительный сезон81 кг/ч
Расход УГЛЯ при максимальной нагрузке котла142 кг/ч
Расход условного топлива106 кг/ч
Минимальная температура воды на входе в котел55 °С
Максимальная температура воды на выходе из котла115 °С
Давление воды, не более0.3-0.6 (3-6) МПа (кгс/см²)
Номинальный расход теплоносителя24 м³/ч
Расход теплоносителя через котел min-max18-30 м³/ч
Гидравлическое сопротивление при номинальном расходене более 0.07 (0.7) МПа (кгс/см²)
Аэродинамическое сопротивление250 (25) Па (мм. вод. ст.)
Разряжение в топочной камере20-40 (2-4) Па (мм. вод. ст.)
Объем уходящих газов3000 м³/ч
Температура уходящих газов220 °С
ТягаУравновешенная
Водяной объем котла570 л
Объем топочной камеры2.5 м³
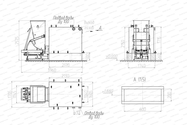
Размер топочной камеры, длина*ширина*высота1295х1300х1500 мм
Активная площадь решетки горения0.8 м²
Присоединительные размеры по водяному тракту80 Ду
Присоединительные размеры газохода уходящих газов, ширина*высота / сечение600х200 / 0.12 мм/м²
Габаритные размеры блока, длина*ширина*высота2170х1740х1715 мм
Габаритные размеры установки, длина*ширина*высота3960х1740х2575
Масса3150 кг
Конструкция котлаВодотрубная
Количество контуровОдноконтурный
РазмещениеНапольный
Тип камеры сгоранияОткрытый
УправлениеЭлектронное
Принцип работы твердотопливного котлаКлассический
ЭнергонезависимыйНет
Тип питанияТрехфазное
Встроенный циркуляционный насосНет
Встроенный расширительный бакНет
ЭнергоэффективностьВысокая
Отапливаемая площадьот 4700 до 6700 м²
Отапливаемый объемот 13900 до 19900 м³

Механический котел КВм 0.6 с ТШПМ в Курчатове

Водогрейный механический котел КВм с ТШПМ мощностью 0.6 МВт работает на каменном и буром угле, используется в механизированных котельных для отопления и горячего водоснабжения. Котел устанавливается на топку с шурующей планкой и неподвижной колосниковой решеткой ТШПМ. Агрегат обслуживается транспортерами топливоподачи и золошлакоудаления. Температура нагрева воды 115 °С, рабочее давление 0,3-0,6 МПа.

Котел КВм 0.6 МВт с ТШПМ устройство

Промышленный стальной котел КВм-0.6 с ТШПМ состоит из котельного блока и топки ТШПМ. Топочное пространство выполнено газоплотным. Чтобы обеспечить газоплотность, между охлаждаемыми трубами котлоагрегата вваривается стальная полоса. Это исключает присос холодного воздуха в топку и зону горения. Деление топки на зоны сушки, горения, охлаждения и сброса позволяет работать на влажном топливе без снижения температуры дымовых газов.

Котельный блок - гладкотрубный, горизонтальной компоновки. Снаружи на водонагревательный котел 0.6 с ТШПМ для отопления устанавливается каркас с теплоизоляцией из плит ПТЭ с обшивкой стальными листами. Функцию шуровки для поддержания реакции горения выполняет водоохлаждаемая шурующая планка, с определенной скоростью движущаяся вдоль неподвижной колосниковой решетки.

Конвективная поверхность сконструирована в виде регистров, вставленных друг в друга в шахматном порядке. Такая поверхность имеет обширную нагревательную площадь и максимальный коэффициент теплопередачи. Дымовые газы охлаждаются на выходе до 200-180 °С. Изоляция отопительного трубного котла КВм-0,6 ТШПМ обеспечивает температуру наружных стенок менее 30 °С.

Котельная должна быть оборудована механизированными средствами подачи топлива и удаления продуктов сгорания.

Гидравлическая схема котла

Скорость движения воды по трубам турбулизирует поток и не допускает отложение солей и образование накипи на стенках трубопроводов. Застой воды в системе и перегрев предупреждают многочисленные перегородки в коллекторах водотрубного котла. За счет гладкотрубной системы и небольшого водяного объема котел взрывобезопасен.

Принцип работы механического котла 0.6 МВт с ТШПМ

Производственный твердотопливный котел КВм 0 6 ТШПМ полностью автоматизирован. Котельная оборудуется транспортерами топливоподачи и золошлакоудаления. По транспортеру топливо поступает в бункер топки ТШПМ. Автоматический питатель бункера подает уголь через определенный промежуток времени на неподвижную решетку топки. Одновременно в действие приводится шурующая планка, передвигающая топливо в конец топки, где продукты сгорания сбрасываются в канал золошлакоудаления и транспортируются в отвал.

Мощность топки регулируется изменением интервала между циклами хода шурующей планки.

Комплект поставки

Цена на механические котлы 0.6 МВт с топкой ТШПМ включает базовую комплектацию. В состав базовой комплектации входит: котельный блок, топка с шурующей планкой, вентилятор поддува, затворы, предохранительные клапаны, вентили, манометры, термометры, трехходовые краны.

Дополнительная комплектация

  • дымосос – создает разряжение в котле и исключает попадание дыма в помещение;
  • золоуловитель – применяется для улавливания золы из дымовых газов;
  • циркуляционный насос - обеспечивает циркуляцию воды в котлоагрегате;
  • подпиточный насос – позволяет пополнять объем теплоносителя в контуре;
  • транспортер УСШ – служит для удаления золы и шлака из под котлов за пределы котельной;
  • бункер топлива - предназначен для создания запаса топлива и устанавливается перед транспортерами подачи;
  • дробилка - предназначена для измельчения поступающего на переработку каменного и бурого угля.

Купить котел КВм 0.6 с ТШПМ

Для того, что бы купить механический котел КВм 0.6 с ТШПМ в Курчатове вы можете сделать заявку по телефону +7-7172-69-59-73, либо оформить заявку онлайн. Менеджеры дадут консультацию по подбору вспомогательного оборудования для выбранных вами моделей и рассчитают стоимость доставки. Транспортирование котлоагрегата и вспомогательного оборудования до объекта осуществляется автомобильным транспортом.

Марки и виды котлов КВм 0.6 с ТШПМ производства котельный завод Энергия К

Российские котлы КВм 0.6 с ТШПМ изготавливаются по ГОСТ 30735-2001 и имеют сертификат соответствия ТС ТР 010/2011, ТС ТР 016/2011, ТС ТР 0632/2013.

Марка КВм 0.6 с ТШПМ расшифровывается как котел водогрейный теплопроизводительностью 0,6 МВт, 600 КВт с механической топкой с шурующей планкой ТШПМ. Также может примениться дополнительная аббревиатура например:

  • котел КВм 0,6 ШП;
  • котел КВм 0,6-95 ШП с температурой нагрева до 95 градусов;
  • котел КВм 0,6-115 ШП с температурой нагрева до 115 градусов;
  • котел КВм 0,6-115 К/Б работающий на каменном и буром угле с механической подачей.

Комплект поставки котла КВм 0.6 с ТШПМ

Топка ТШПМ 0.8
Топка ТШПМ-0,8
1 штука
Вентилятор
Вентилятор 2 с дв. 2,2/3000
1 штука
Затвор Ду 80
Затвор Ду 80
2 штуки
Клапан предохранительный Ду 50
Клапан Ду 50
1 штука
Клапан обратный
Клапан обратный
1 штука
Манометр МП 160
Манометр МП 160
2 штуки
Кран трехходовой ДУ 15
Кран Ду 15
2 штуки
Термометр ТТЖО
Термометр ТТЖО
2 штуки
Оправа термометра ОПТ
Оправа ОПТ
2 штуки
Вентиль Ду 15
Вентиль Ду 15
7 штук
Вентиль Ду 20
Вентиль Ду 20
10 штук
Вентиль Ду 32
Вентиль Ду 32
2 штуки

Вспомогательное оборудование для работы котла КВм 0.6 с ТШПМ

Автоматика механической топки ТШПМ
Цена 1 462 800 тг.
Дымосос ДН 3.5
Цена 355 524 тг.
Золоуловитель ЗУ 0.6
Цена 286 200 тг.
Дымосос ДН 6.3
Цена 644 904 тг.
Подъемник скиповый 100
Цена 4 960 800 тг.
Скребковый транспортер ТС 2-30
Цена 7 632 000 тг.
ВДП 15 дробилка
Цена 7 218 600 тг.
Бункер для топлива
Цена 4 897 200 тг.
Насос К консольный
К 65-50-160а
Цена 388 596 тг.
Насос К консольный
К 50-32-125
Цена 283 656 тг.
Насос TD
Насос TD40-36G2 (5.5 кВт)
Цена 1 225 572 тг.
Насос CHL
Насос CHL2-40 (0.55 кВт)
Цена 368 880 тг.

Аналоги котла КВм 0.6 с ТШПМ

Котел КВм 0.6 МВт с топкой РПК
Котел КВм 0.6 МВт с РПК
Вид топкиМеханическая, РПК
Максимальная тепловая мощность, МВт0.6
ТопливоТвердое, Уголь
Отапливаемая площадь, м²от 4700 до 6700
Цена 5 011 680 тг.
Котел КВр-0.6 К
Котел КВр 0.6 МВт
Вид топкиРучная, Колосники
Максимальная тепловая мощность, МВт0.6
ТопливоТвердое, Уголь
Отапливаемая площадь, м²от 4700 до 6700
Цена 3 930 480 тг.
Котел КВм 0.7 МВт с ТШПМ
Котел КВм 0.7 с ТШПМ
Вид топкиМеханическая, ТШПМ
Максимальная тепловая мощность, МВт0.7
ТопливоТвердое, Уголь
Отапливаемая площадь, м²от 5400 до 7700
Цена по запросу
Котел КВм 0.8 МВт с ТШПМ
Котел КВм 0.8 с ТШПМ
Вид топкиМеханическая, ТШПМ
Максимальная тепловая мощность, МВт0.8
ТопливоТвердое, Уголь
Отапливаемая площадь, м²от 6200 до 8900
Цена 8 554 200 тг.

Сертификат и качество котла КВм 0.6 с ТШПМ

Сертификат на водогрейные котлы на твердом и жидком топливе
Сертификат на водогрейные котлы на твердом топливе

Собственное производство

Котельный завод производит
  • Паровые котлы от 300 кг до 2.5 тонны пара в час
  • Промышленные водогрейные котлы от 150 КВт до 4 МВт на всех видах топлива
  • Механические топки ТШПМ, шурующая планка и ТЛПХ, ленточное полотно прямого хода
  • Циклоны для очистки воздуха и дымовых газов для производств и промышленных отраслей
  • Транспортеры и системы топливоподачи и шлакоудаления
Подробнее о производстве
Собственное производство
Смотреть видео
с производства